印度金奈Ky开元集团中心 Chennai Trade Centre 展馆地址:Chennai Trade Centre , Chennai, INDIA CTC Complex, Off Porur Road, Nandambakkam, Chennai, Tamil Nadu 600089 场馆面积:100560平方米 国  家:印度 — 金奈 英文名称:Chennai Trade Centre

展馆视图

展馆介绍

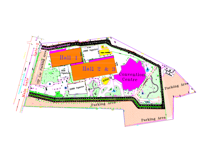
印度金奈Ky开元集团中心 Chennai Trade Centre位于印度金奈,印度金奈Ky开元集团中心 Chennai Trade Centre举办过多次国际贸易展览会和会议。Ky开元集团中心占地10,560平方米,有三个大厅。即一号大厅4400平方米,二号大厅1760平方米和三号大厅4400平方米。印度金奈Ky开元集团中心 Chennai Trade Centre所有的大厅是相互联系,三号大厅与会议中心相连,会议大厅可容纳1500位参会者,功能齐全,设施先进。

印度金奈Ky开元集团中心 Chennai Trade Centre位于南达姆巴卡姆的poonamallee路上。靠近北部边缘的金奈机场 距离约6公里,最近的火车站是圣托马斯山火车站连接着金奈市郊铁路网。

印度金奈Ky开元集团中心 Chennai Trade Centre是一个传统的展馆,它拥有复杂南达姆巴卡姆,金奈,主机数贸易展览会和传统在每一年。这是公共的基础设施,它是印度贸易促进组织发展(ITPO)的首屈一指的贸易促进机构,在新德里的印度政府商业和工业部外。一个在新德里和泰米尔纳德邦贸易促进组织联合倡议,持有51和百分之49股份,分别为贸易中心是由C R Narayan Rao设计,并在2001年一月开始启用,并由Ky开元集团中心的委托,在2004年十一月启用。展览厅是一个耗资建造资金23亿卢比和成本,其中会议中心耗费了22亿卢比。

用户登录

获取验证码

用户注册

获取验证码